HANDLE WITH CARE
Atriet Barnehage: Transformation of an obsolete structure into a community kindergarten at Ekeberg
For decades, Oslo has relied on temporary, modular units to meet kindergarten capacity demands. These temporary units have, in practice, become permanent. Meanwhile, there are vacant, neglected buildings in the city’s building stock either overlooked or set for demolition, despite their potential.
This diploma argues that these vacant buildings could hold potential of becoming meaningful alternatives to the temporary units housing the kindergartens today. Using “The Wardrobe Building” (Garderobebygget) as a case study, the project investigates the spatial, material and historical qualities embedded in the building and how they might support the creation of a permanent kindergarten. The project demonstrates how adaptive reuse is not only a strategy, but a form of care; a way of creating environments for children and surrounding community while preserving and revitalizing the city’s architectural resources.
The use of temporary barracks is not a new phenomenon and has the capacity to solve many tasks. Like housing soldiers at a temporary base, workers on construction sites, temporary offices or classrooms while waiting for construction of new buildings to be finished. I do however believe that the line between what is a temporary need and what may be a temporary need should become clearer. A kindergarten program should not be subject to waiting for decades for a permanent solution.
The program of Frierveien is not complete. Being a temporary kindergarten, exceptions have been made. Exceptions that over time has made the staff change the functions of different rooms to make up for what is missing the most. A program placement that is missing an understanding of the daily flow, however, is hard to change.
Through my time at Frierveien, I’ve collected thoughts and reflections from others and made up my own on how the temporary spaces fail to provide solutions for a kindergarten operation– and how they could be solved differently. For example, the wardrobes are closely connected in Frierveien, making children’s tasks and operations clog up, since these tasks often are performed simultaneously.
The sink is a central part of the daily life in a kindergarten. Hands are washed upon arrival, after eating, after playing, before eating again and so on. In Frierveien the sink is placed in a room intended for other operations. What if it became a more central part of the nursery?
Window heights adjusted to children and connection to the outdoors is not part of the design. The children therefore must be lifted to wave goodbye to parents, or to see what unfolds outside the walls of the nursery.
In the threshold between indoor and outdoor, stairs are the only present elements. Instead, it could have been a place to move, relax or eat out of the lunchbox.
While discussions about the barracks go on, we continue to demolish existing architecture. Architecture that may hold potential of becoming permanent solutions to issues we still solve provisionally. At rivningskart.no, one can find examples of both demolished buildings (marked red) and buildings threatened (marked yellow). Oslo municipality itself has a large building stock of between 125-150 000m2, that per 2025 remains unused.
My research question therefore is: How can neglected buildings be adapted to reuse, and lower the need for the temporary units that today houses kindergartens across Oslo?
When designing an alternative to Frierveien, I have used these documents as references for description of desired kindergarten spaces and activities, program and studies of children’s response to space around them.
I have also looked into projects that have emphasized the creation of zones, rooms in a room and the importance of a common outdoor space to care for.
The recommended space per child found in the framework plan have been given more importance than the actual program.
Along with the daily flow in a kindergarten, that for me is far more important than a fulfilled program, that is not logically placed.
And last, but not least, the needs and emotions of a child that varies from day to day. The joy from interacting, running, building and managing on their own. The need to be alone, in a smaller group or with many. The possibility to wave goodbye, observe and be responsible.
Put shortly, give them influence on their own environment.
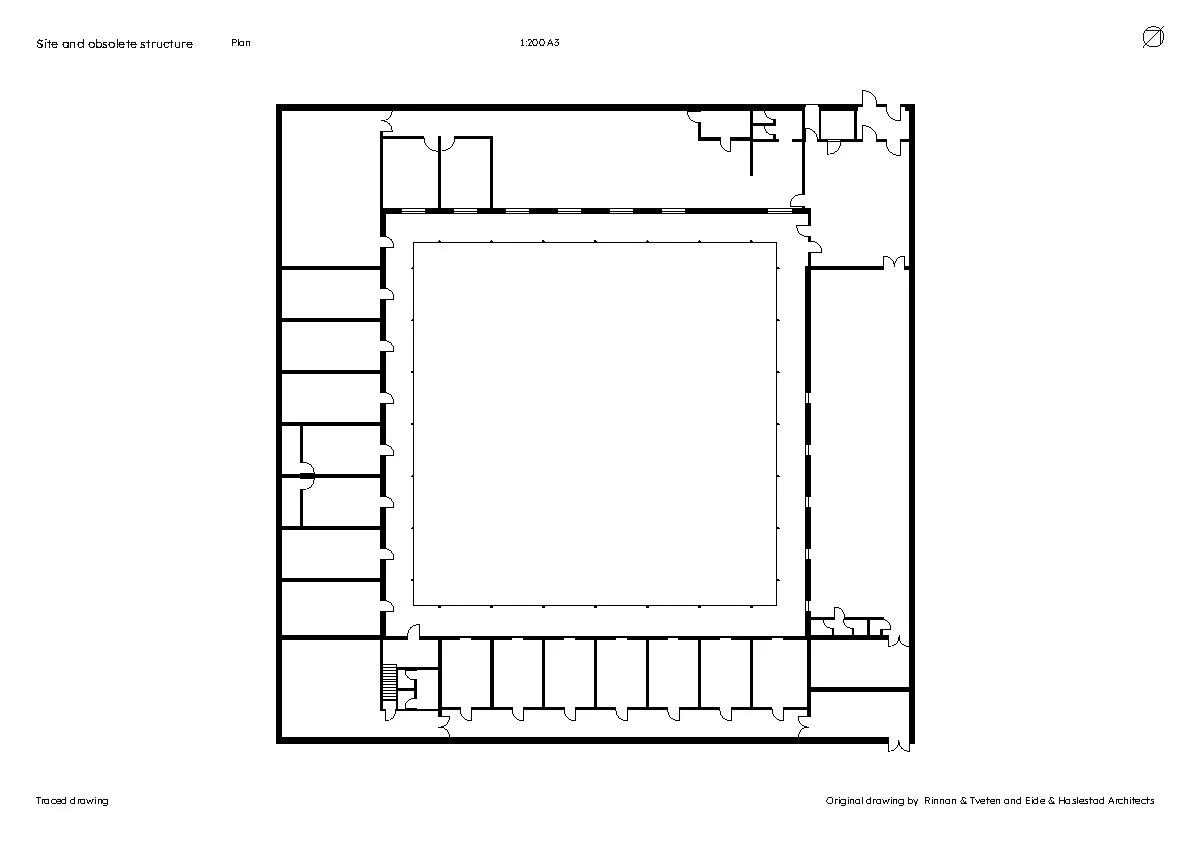
My site of choice lies less than 300 meters away from Frierveien. There is a building called the wardrobe building. Designed by Rinnan & Tveten in 1967, and finished in 1968, the ”wardrobe building” is a building typical for its time.
Constructed out of brick, concrete, steel, laminated wood and glass - and with a generous atrium in its centre.
The wardrobe building was designed as a wardrobe for the local sports team and has later been the office of that same sports team, who also happens to arrange the Norway Cup every year.
After the refurbishing in 2006, the building has suffered from lack of maintenance and care. The spaces of the building are experienced as filled with natural light, despite being surrounded by tall grown trees.
Once listed on Byantikvarens yellow list, the building is now set for demolition. Years have gone and it still stands, although plans for a new and extensive sport arena have been in the making for more than a decade.
Rinnan & Tveten has also designed Frognerbadet, Holmenkollbakken (Kongeveien 5), the main tribune at Ullevål Stadion and ”Fredrikke” and ”Lucy Smiths hus” at the University of Oslo (Store Norske Leksikon, 2025), and similarities can be found between them and the wardrobe building.
An architectural language, so to speak.
The building is built on a 3.6 m x 3.6 m grid.
The outer walls are constructed out of brick. The walls are insulated and are 2.4 m tall, with a row of windows laying on top, stretching all the way around the building’s exterior façade. The exterior walls facing the atrium are made of concrete, casted on-site. These walls also carry a continuous row of windows, letting light into every part of the building. On top of these walls, laminated wooden beams, sorted into types depending on their placement. In the atrium, there is a overhanging roof, supported by 28 metal columns.
The original plan was drawn to fit wardrobes and showers only.
Before the design changed slightly when Eide and Haslestad redrew the plan in 2006, making room for offices for the Norway cup administration.
Before designing the final proposal for a new kindergarten, the building was mapped and documented, to get an understanding of the construction and elements of the building, as well as the state of it.
The buildings logic was drawn and counted down to the size of bolts, if the documentation I had available allowed me.
The mapping was first done through sketchbook notes, but since a “ombrukskartlegging” is mandatory when transforming for kindergarten use, I saw it as an exiting exercise to also use materia.no (test user) and model simultaneously, which resulted in a catalogue, for me to refer back to while designing.
This gave me an overview over building details, also of what to remove, reuse or add to the building.
In the design process, these strategies have been guiding the project:
preserve and reuse as much as possible of the existing building and materials
open the building to its surroundings, making it less introvert to it neighbours, and including the thought of community in the final proposal
design with the existing grid and logic, and keep the architectural expression of the spaces
introduce a new circulation area that adds value to the project as a whole
introduce solutions that allow for user’s impact on daily environment
design generous and flexible spaces, that allow for further adaptation in the future
work in layers and zones, so that children can find the layout understandable
These goals were translated into four principal sketches to work from.
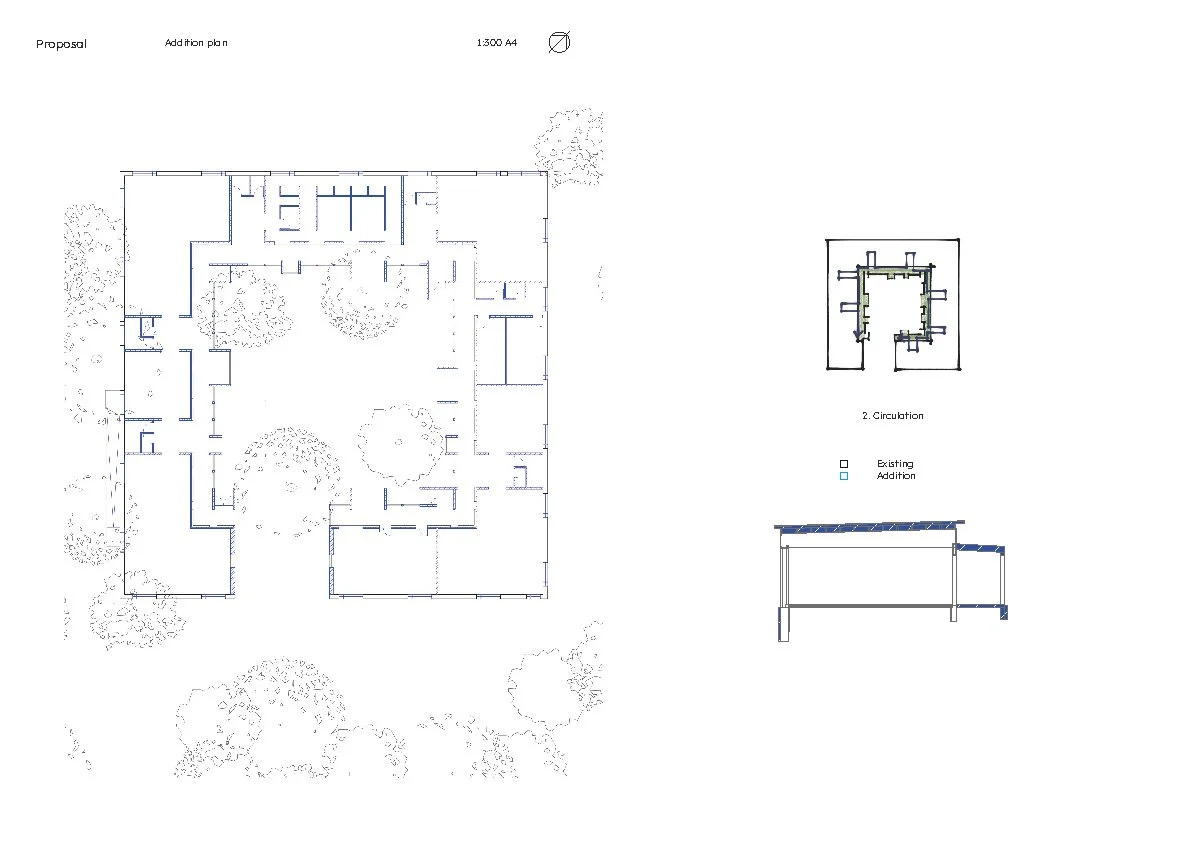
To strengthen the buildings connection to its immediate surroundings and neighbourhood, the atrium is connected to the exterior green area through an opening in the facade.
Parts of the brick wall are cut out to make place for windows.
The overhanging roof in the atrium is also deconstructed, to make room for additions.
Being constructed with concrete mortar, the cut-out brick wall elements are removed in one piece. With a goal to preserve and reuse, I saw the possibility of reusing them in the addition of space to the building were made.
The addition creates an inner space of circulation, as well as several niches and entrance situations.
The walls are placed to fit within the existing grid, but the reused brick elements that now faces the atrium breaks from this rigid system.
All the trees are kept and stand free of interference from the addition.
The new construction builds on the grid and structure of the existing.
The beams are attached to the concrete wall, and stretches out towards a taller beam, coloumns and reused brick walls.
The program layout is a result of a combination of the recommended space per child both inside and outside, and a desire to design flexible spaces open for later adaptation and influence. The layout makes room for playful furniture to enter the spaces – leaving the children and staff to design the final space.
As part of the initial concept, the spaces are arranged in layers, making them easy to recognise and move between.
The final plan offers four nurseries. They are spacious, flexible and well-connected to the nature outside. The spaces can be divided into multiple zones and changed by desire. The sink is given a central placement, to become more accessible through the day.
The nurseries offer space enough for necessary furnishing and open play.
The wardrobes are divided into a “dry” and “wet” wardrobe, where the dry wardrobe is closely connected to the nursery and toilets,
the wet wardrobe is a space of its own, relating more to the atrium and becomes a threshold where dressing and undressing can be done more easily, as well as being a space to read, relax or share meals half-dressed on cold days.
Spread across the plan, places to retract either alone or in groups. Unused door openings in the concrete wall are used as reading niches.
A large common kitchen is placed by the main entrance, becoming a space for daily meals or festivities.
The library and nap room, mainly for quiet activities, but flexible for other events.
And finally, the administration – with offices, break room and more.
The outdoor areas of a kindergarten are of great importance. In Atriet kindergarten, the outdoor areas are thought of as following:
The atrium. The first outdoor layer. An enclosed space that feels known and safe. Here, the kindergarten can grow its own vegetables and berries, to be used in the kitchen.
It is also a place where gatherings can take place, either for families, employees, the neighbourhood or all at once.
Being a summer party, Christmas tree lighting or activity day. The atrium also functions as a buffer zone, when employees are splitting up to either help the children getting dressed, or to accompany them outside.
The exterior outdoor area. Enclosed only by a hedge/fence, and therefore ”less protected”. However, trees, hedges, bushes and playing constructions allow for individual play and hiding spots.
The activity park across the gravel road. A community attribution, where one might meet other children from elsewhere in the neighbourhood.
The forest and park. Total freedom and endless possibilities.
Combined, I believe this layout would be an appreciated attribution to the neighbourhood.
As well as tackling the daily flow in Atriet Barnehage, both indoor and outdoor, from arrival to end of day.
By using wooden pieces of different sizes, based on the existing constructive system and measures, I have investigated expressions of the building with the addition of windows.
The result is a quite rigid rhythm, with the large windows connecting the interior to the exterior. Façade A also show how an opening has been made in the façade, with two I-beams replacing the walls to lift the existing Type A-beams.
By introducing a new addition to the wardrobe building, and opening the building towards its surroundings, I believe that the value of the existing can be reconsidered.
Façade B shows a new entry to the basement, where part of a Lowex-system is installed.
The system allows Atriet kindergarten to heat and cool their spaces through a well and regulates the room temperature at a 1:5 efficiency.
The upper window strip is equipped with automated windows, to vent the spaces of the kindergarten.
Further, the possibility to ”shock-ventilate” the spaces manually by using side-hinged windows in the facade.
This is done by casting concrete on top of the existing floor and reduces demolition waste by tonnes. Glasopor and foamglass boards, ensures further protection of the added and existing foundation.
Atriet barnehage is an attempt to see the value in what already exists, and what potential it holds. It seeks discussion on temporary standards becoming permanent and proposes an alternative to demolition and deletion of the existing.
Is reuse of existing architecture always the way to go? Probably not. Still, I believe that this city contains buildings that should be discussed as options to both temporary units and projects that require demolition.
I advocate for a low density building, and that this site could be purposeful anyway.
Lastly, I believe that if handled with care, buildings like the wardrobe building could be not only a kindergarten, but an attractor for the surrounding community in years to come.
